在智能制造与数字化转型的浪潮中,图纸作为工业设计的核心载体,其版本管理与差异比对已成为企业质量控制、成本管控和效率提升的关键环节。然而,随着设计复杂度的提升和图纸数量的激增,传统人工比对模式已难以满足需求。艾三维技术推出的图纸比对软件,通过技术创新实现了从单点突破到全流程优化的跨越,为行业提供了高效、精准的批量化比对解决方案。

一、传统图纸比对的痛点与挑战
1.低效的人工操作模式
传统图纸比对依赖人工逐行检查或图层叠加对比,例如通过调整新旧图纸颜色(如白色与红色)识别差异区域。这种方式不仅耗时(平均耗时2-3小时/次),且人工比对准确率仅约85%。某船舶设计院统计显示,工程师60%的工作时间耗费在图纸比对环节,导致设计迭代周期延长30%以上。

2.技术工具的局限性
主流CAD软件(如AutoCAD)虽内置对比功能,但仅支持两两比对,处理多版本图纸需重复操作。此外,DWG格式文件体积庞大,上传与解析耗时占整体流程的40%。不同软件(如SolidWorks与浩辰CAD)的格式兼容性问题,常导致信息丢失或显示异常,影响比对精度。

3.协同与管理的缺失
传统比对结果以本地文件保存,缺乏实时共享与标注功能。跨地域团队协作时,版本滞后与沟通误差频发,某机电项目曾因图纸更新未及时同步,导致施工返工损失超500万元。
二、艾三维图纸比对软件的技术突破
1.批量化处理架构
艾三维软件通过分布式计算引擎实现万级图纸并行处理,支持PDF、DWG等多格式批量上传与自动对齐。其采用轻量化PDF格式优化技术,文件解析效率提升50%,处理100张图纸的比对时间从传统方法的8小时压缩至4小时。微服务架构设计使其可无缝嵌入企业现有管理系统,实现与BIM平台、项目管理系统的数据互通。
2.智能差异识别与可视化
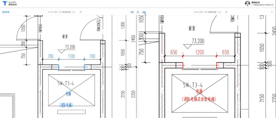
软件基于多模态特征提取算法,通过颜色编码动态标注差异区域,并支持焦点定位与动态缩放。例如,某建筑项目中,系统在10秒内定位到未标注的管线走向调整,避免了施工阶段的返工。

3.云端协同与全流程管理
对比结果通过区块链技术确保可追溯性,并生成标准化PDF报告,支持云端存储与链接分享。施工方、设计方、监理方可实时在线批注,减少沟通成本。某汽车集团应用后,全球研发中心的图纸冲突率下降92%,协作效率提升300%。全生命周期管理模块追踪图纸演化轨迹,建立版本差异知识库,预测性分析功能可提前识别70%的潜在设计风险。

三、应用场景与实践价值
1.设计版本管理:支持追踪同一项目的多次修改记录,确保设计变更可追溯。某航天企业通过比对历史版本,将设计缺陷的后期修改成本降低67%。
2.跨专业协同:在机电、结构、建筑等多专业图纸间快速核对冲突点。某智慧园区项目中,系统识别出管线与结构梁的干涉问题,节省了200小时的人工复核时间。
3.施工交底验证:比对施工图与竣工图,确保施工符合性。

艾三维图纸比对软件的实践表明,批量化准确比对已从技术可行性演进为工程实践标准。通过某机场扩建工程、道路改造等百余个项目的验证,该软件实现:
效率指标:人工核查工作量减少85%
质量指标:错漏碰缺检出率提升至98%
管理指标:设计变更引发的返工率下降62%

图纸批量化比对技术的突破,不仅是工具效率的提升,更是制造业质量管控范式的重构。艾三维通过技术创新,将比对准确率推升至99.9%,处理时效进入分钟级,为企业降本增效提供了坚实支撑。

一、传统图纸比对的痛点与挑战
1.低效的人工操作模式
传统图纸比对依赖人工逐行检查或图层叠加对比,例如通过调整新旧图纸颜色(如白色与红色)识别差异区域。这种方式不仅耗时(平均耗时2-3小时/次),且人工比对准确率仅约85%。某船舶设计院统计显示,工程师60%的工作时间耗费在图纸比对环节,导致设计迭代周期延长30%以上。

2.技术工具的局限性
主流CAD软件(如AutoCAD)虽内置对比功能,但仅支持两两比对,处理多版本图纸需重复操作。此外,DWG格式文件体积庞大,上传与解析耗时占整体流程的40%。不同软件(如SolidWorks与浩辰CAD)的格式兼容性问题,常导致信息丢失或显示异常,影响比对精度。

3.协同与管理的缺失
传统比对结果以本地文件保存,缺乏实时共享与标注功能。跨地域团队协作时,版本滞后与沟通误差频发,某机电项目曾因图纸更新未及时同步,导致施工返工损失超500万元。
二、艾三维图纸比对软件的技术突破
1.批量化处理架构
艾三维软件通过分布式计算引擎实现万级图纸并行处理,支持PDF、DWG等多格式批量上传与自动对齐。其采用轻量化PDF格式优化技术,文件解析效率提升50%,处理100张图纸的比对时间从传统方法的8小时压缩至4小时。微服务架构设计使其可无缝嵌入企业现有管理系统,实现与BIM平台、项目管理系统的数据互通。
2.智能差异识别与可视化
软件基于多模态特征提取算法,通过颜色编码动态标注差异区域,并支持焦点定位与动态缩放。例如,某建筑项目中,系统在10秒内定位到未标注的管线走向调整,避免了施工阶段的返工。

3.云端协同与全流程管理
对比结果通过区块链技术确保可追溯性,并生成标准化PDF报告,支持云端存储与链接分享。施工方、设计方、监理方可实时在线批注,减少沟通成本。某汽车集团应用后,全球研发中心的图纸冲突率下降92%,协作效率提升300%。全生命周期管理模块追踪图纸演化轨迹,建立版本差异知识库,预测性分析功能可提前识别70%的潜在设计风险。

三、应用场景与实践价值
1.设计版本管理:支持追踪同一项目的多次修改记录,确保设计变更可追溯。某航天企业通过比对历史版本,将设计缺陷的后期修改成本降低67%。
2.跨专业协同:在机电、结构、建筑等多专业图纸间快速核对冲突点。某智慧园区项目中,系统识别出管线与结构梁的干涉问题,节省了200小时的人工复核时间。
3.施工交底验证:比对施工图与竣工图,确保施工符合性。

艾三维图纸比对软件的实践表明,批量化准确比对已从技术可行性演进为工程实践标准。通过某机场扩建工程、道路改造等百余个项目的验证,该软件实现:
效率指标:人工核查工作量减少85%
质量指标:错漏碰缺检出率提升至98%
管理指标:设计变更引发的返工率下降62%

图纸批量化比对技术的突破,不仅是工具效率的提升,更是制造业质量管控范式的重构。艾三维通过技术创新,将比对准确率推升至99.9%,处理时效进入分钟级,为企业降本增效提供了坚实支撑。







