18122393143
聚焦行业热点资讯  走在新基建建设前沿
建筑结构分为哪些类型,怎么快速计算和分析建筑所需物料?

聚焦行业热点资讯 走在新基建建设前沿

首页 > 资讯中心 > 建筑结构设计

建筑结构分为哪些类型,怎么快速计算和分析建筑所需物料?

2021/09/15
结构设计分为建筑结构设计和产品结构设计两种,其中建筑结构又包括上部结构设计和基础设计。
建筑结构是指在房屋建筑中,由各种构件(屋架、梁、板、柱等)组成的能够承受各种作用的体系。所谓作用是指能够引起体系产生内力和变形的各种因素,如荷载、地震、温度变化以及基础沉降等因素。
建筑结构设计

建筑结构主要内容

上部结构设计主要内容及步骤:1.根据建筑设计来确定结构体系、确定结构主要材料;2.结构平面布置;3.初步选用材料类型、强度等级等,根据经验初步确定构件的截面尺寸;4.结构荷载计算及各种荷载作用下结构的内力分析;5.荷载效应组合;6.构件的截面设计。此外还包括某些必要构造措施。需要依据结构专业相关规范、图集等。

上部结构设计:主要分为框架结构、剪力墙结构、框架—剪力墙结构、框架—核心筒结构、筒中筒结构、砌体结构。

建筑结构设计

基础设计:

1、根据工程地质勘察报告、上部结构类型及上部结构传来的荷载效应和当地的施工技术水平及材料供应情况确定基础的形式,材料强度等级,一般有浅基础(如:独立基础、条形基础等)和深基础(如:桩基)。

2、基础底面积的确定及地基承载力验算。

3、基础内力计算及配筋计算。

4、考虑必要的构造措施。

结构施工图是结构工程师的语言,是直接面对施工现场及相关工程技术人员的,应该按照一定的规范绘制。

建筑结构分类

一、建筑结构按所用材料分类
按照所用材料不同,分为混凝土结构、钢结构、砌体结构和木结构。

1.混凝土结构

混凝土结构是以混凝土为主要建筑材料的结构,包括素混凝土结构、钢筋混凝土结构和预应力混凝土结构。

2.砌体结构

砌体结构是由块体(如砖、石和混凝土砌块)及砂浆经砌筑而成的结构,大量用于居住建筑和多层民用房屋(如办公楼、教学楼、商店、旅馆等)中,并以砖砌体的应用最为广泛。

砖、石、砂等材料具有就地取材、成本低等优点,结构的耐久性和耐腐蚀性也很好。缺点是材料强度较低、结构自重大、施工砌筑速度慢、现场作业量大等,且烧砖要占用大量土地。

3.钢结构

钢结构是以钢材为主制作的结构,主要用于大跨度的建筑屋盖(如体育馆、剧院等)、吊车吨位很大或跨度很大的工业厂房骨架和吊车梁,以及超高层建筑的房屋骨架等。钢结构材料质量均匀、强度高,构件截面小、重量轻,可焊性好,制造工艺比较简单,便于工业化施工。缺点是钢材易锈蚀,耐火性较差,价格较贵。

建筑结构设计

4.木结构

木结构是以木材为主制作的结构,但由于受自然条件的限制,我国木材相当缺乏,仅在山区、林区和农村有一定的采用,具体应用于单层结构。

二、按结构承重体系分类

1.墙承重结构
用墙体来承受由屋顶、楼板传来的荷载的建筑,称为墙承重受力建筑。如砖混结构的住宅、办公楼、宿舍等,适用于多层建筑。
2.排架结构
采用柱和屋架构成的排架作为其承重骨架,外墙起围护作用,单层厂房是其典型。
3.框架结构
以柱、梁、板组成的空间结构体系作为骨架的建筑。常见的框架结构多为钢筋混凝土建造,多用于10层以下建筑。

建筑结构设计

4.剪力墙结构

剪力墙结构的楼板与墙体均为现浇或预制钢筋混凝土结构,多被用于高层住宅楼和公寓建筑。

5.框架—剪力墙结构

在框架结构中设置部分剪力墙,使框架和剪力墙两者结合起来,共同抵抗水平荷载的空间结构,充分发挥了剪力墙和框架各自的优点,因此在高层建筑中采用框架——剪力墙结构比框架结构更经济合理。
建筑结构设计
6.筒体结构

筒体结构是采用钢筋混凝土墙围成侧向刚度很大的筒体,其受力特点与一个固定于基础上的筒形悬臂构件相似。常见有框架内单筒结构、单筒外移式框架外单筒结构、框架外筒结构、筒中筒结构和成组筒结构。

7.大跨度空间结构

该类建筑往往中间没有柱子,而通过网架等空间结构把荷重传到建筑四周的墙、柱上去,如体育馆、游泳馆、大剧场等。

建筑结构设计

混凝土/钢结构计算分析软件

1. STAAD

STAAD是BENTLEY的一款通用有限元结构分析与设计软件。使用STAAD能确保按时、按预算完成任何复杂程度的钢结构、混凝土结构、木结构、铝结构和冷弯型钢结构项目。

建筑结构设计

STAAD还具有以下优势:

降低总体拥有成本:设计包括涵洞、石化工厂、隧道、桥梁、桥墩在内的任何类型的结构
提高设计生产效率:简化工作流以减少重复工作并消除错误

降低项目成本和延迟:为客户提供精确且经济的设计,并快速周转变更请求

STAAD软件功能

①强大的三维图形建模与可视化前后处理功能:STAAD 本身具有强大的三维建模系统及丰富的结构模板,用户可方便快捷地直接建立各种复杂三维模型。
建筑结构设计
△ 设计和分析结构模型
建筑结构设计

△ 生成结构设计文档

②超强的有限元分析能力:可对钢、木、铝、砼等各种材料构成的框架、塔架、桁架、网架(壳)、悬索等各类结构进行线性、非线性静力、反应谱及时程反应分析。

③设计梁、柱和墙:优化或分析梁、柱和墙的重力和横向载荷,以快速获得安全经济的设计。生成符合许多国际设计规格和建筑规范的设计。

④进行综合的数量统计:通过综合的物料统计和成本估算(按物料、大小和形状排列)深入了解混凝土设计备选方案。估算模板面积和预付成本。

建筑结构设计

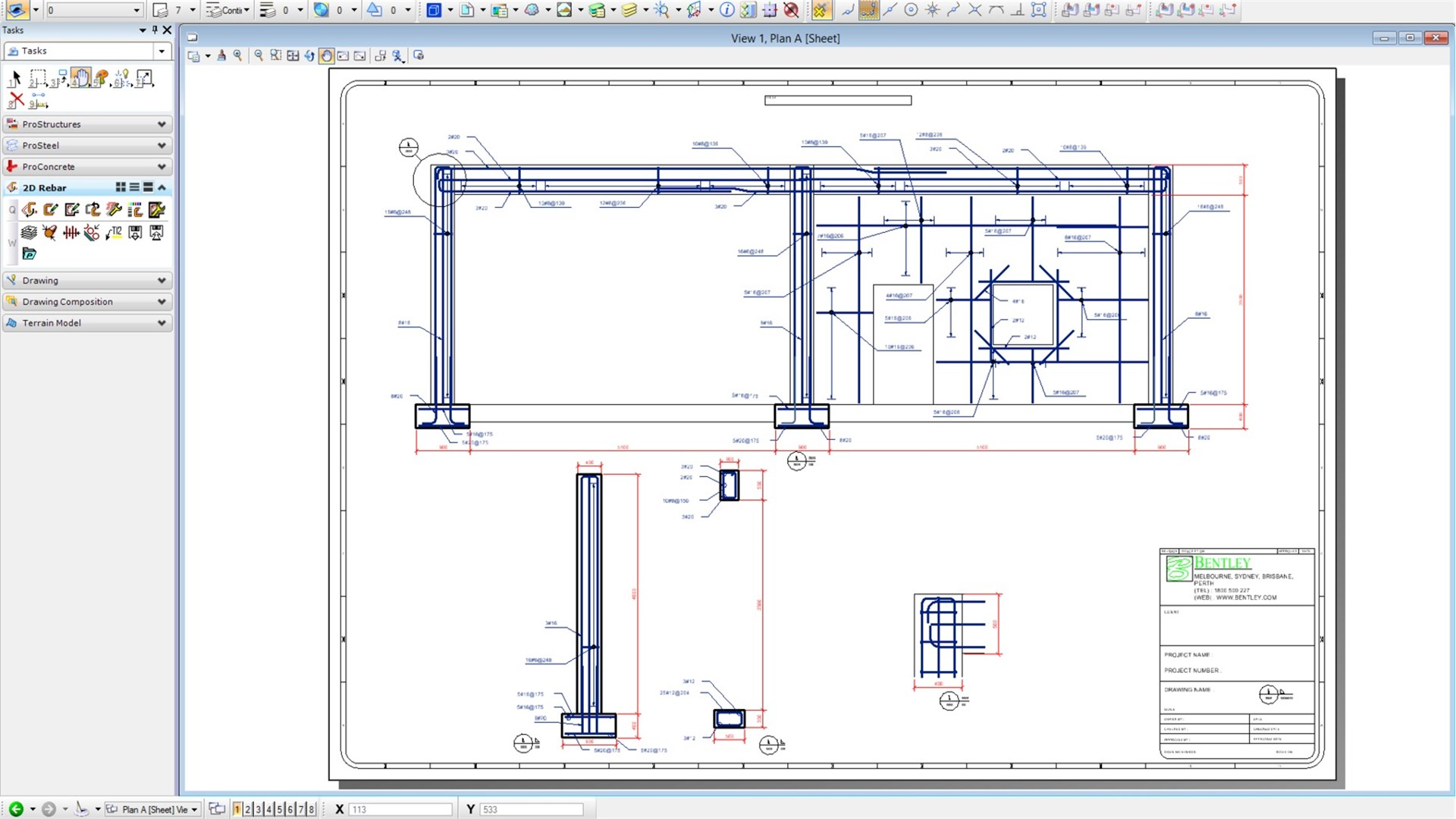
⑤生成混凝土工程图和钢筋表:生成综合的钢筋工程图,包括自动钢筋标记、尺寸和注释,以及钢筋放置图,包括三维模型截面图、平面图和详图。自定义所有工程图,以符合您公司的标准。根据三维模型的更改自动更新工程图。

建筑结构设计

⑥遵循抗震要求:根据相关建筑规范设计和详细设计抗震系统,生成抗震载荷。在设计元素和设计框架及更大的结构系统(如果适用)时考虑这些作用力。在按比例分配和详细设计元素时,遵循所选设计规范的延展性要求。

⑦国际化的通用结构设计软件:程序中内置了世界 20 多个国家的标准型钢库供用户直接选用,也可由用户自定义截面库,并可按照美、英、日、欧洲等世界主要国家和地区的结构设计规范进行设计。

建筑结构设计

△ 利用国际剖面图

2. ProStructures

ProStructures是一款钢结构和混凝土设计软件,ProStructures 可用于创建设计图纸、制造详图和钢筋表,它们会随着您对三维模型的更改自动更新。
ProStructures 包含 ProSteel(钢结构详图绘制和制造软件) 和 ProConcrete(混凝土绘图和制造软件) 两大组件,有助于提升您的工作效率和获利能力。
建筑结构设计

ProStructures软件功能

①国际标准的设计:您的产品设计中,使用广泛的国际标准与规格,扩展您的业务实践,利用全球的设计机会。受益于国际标准的广泛支持,充满信心的完成您的设计。

建筑结构设计
△ 按照国际设计标准进行设计

②钢筋混凝土详细设计和制表:生成钢筋放置工程图,包括截面图、平面图、详图、钢筋弯曲表、材料统计和梁/柱/基脚钢筋表,这些全部以三维模型为基础。所有钢筋表和工程图均可进行自定义,以满足您公司混凝土项目的标准。

建筑结构设计

△ 制作混凝土钢筋详图和钢筋表

③为参数结构建模:为结构构件(比如梁、柱、支架、钢结构连接、基础、地基和钢筋)建模。在梁和柱之间使用钢结构连接,自动更新尺寸变化。构件类型也可以用到参数化组件(比如楼梯、梯架和扶手)中。

建筑结构设计
△ 参数化结构建模

④为钢筋混凝土建模:为各种形状的钢筋混凝土建模,如混凝土梁、柱、板、墙、扩展基脚和连续基脚,全部使用参数化方式进行操作。混凝土形状如有变化,钢筋会自动调整。使用直观的命令为复杂的钢筋混凝土形状建模,包括曲线、斜面或非正交形状。

建筑结构设计

△ 钢筋混凝土建模

⑤生成钢铁制造工程图:为三维模型中的每个型钢、钢结构结点和钢结构板件生成工程图。轻松创建综合的单部件工程图,包括尺寸、注释、标签和部件清单。定制工程图以符合公司所有结构钢项目的标准。根据三维模型的更改自动更新所有过时的工程图。

建筑结构设计

△ 生成钢铁制造图纸

⑥生成结构混凝土详图:生成钢筋放置工程图,包括三维模型中的截面图、平面图和详图。快速创建钢筋详图,包括自动钢筋标记、尺寸和注释。自定义全部工程图,确保所有钢筋混凝土项目均符合您公司的标准。根据三维模型的更改自动更新工程图。

建筑结构设计

△ 生成结构混凝土详图

⑦生成结构施工文档:生成施工文档(如平面图、剖面图和详图),这些全部与三维模型自动关联。对三维模型所作的更改会在工程图中自动更新。使用工程图中需要重新发布的自动标记来轻松管理模型的更改和修订。

建筑结构设计

△ 生成结构施工文档

⑧生成结构设计文档:自动生成结构设计文档,包括用于传递设计意图的必要平面图和立面图。对三维模型所作的更改会在文档中自动更新。

建筑结构设计

△ 生成结构设计文档

⑨生成结构详图:利用在结构模型中建立的设计结果直接生成详细的二维工程图。使用软件中提供的设置自定义工程图的样式和格式。

建筑结构设计

△ 生成结构详图

⑩共享结构模型:将结构模型几何图形和设计结果从一个应用程序传输到另一个应用程序,并同步未来变化。快速共享结构模型、工程图和信息以供整个团队查看。

建筑结构设计

△ 共享结构模型

跟踪和恢复结构设计变更:管理三维模型的设计变更,利用可选说明和时间戳跟踪版本修订。在项目期间,可以随时回退或撤销选定的变更。查看多个设计方案,并从建模错误中快速恢复。

建筑结构设计

△ 跟踪和回滚结构设计变更

充分利用国际通用标准截面配置文件:使用丰富的国际通用标准的截面配置文件库(不另外收费)完成结构模型。充分利用全球性的设计机会。

建筑结构设计

△ 利用国际剖面

建筑结构的作用

在建筑物中,建筑结构的任务主要体现在以下三个方面。

1. 服务于空间应用和美观要求

建筑物是人类社会生活必要的物质条件,是社会生活的人为的物质环境,结构成为一个空间的组织者,如各类房间、门厅、楼梯、过道等。同时,建筑物也是历史、文化、艺术的产物,建筑物不仅要反映人类的物质需要。还要表现人类的精神需求,而各类建筑物都要用结构来实现。可见,建筑结构服务于人类对空间的应用和美观要求是其存在的根本目的。

建筑结构设计

2. 抵御自然界或人为荷载作用

建筑物要承受自然界或人为施加的各种荷载或作用,建筑结构就是这些荷载或作用的支承者,它要确保建筑物在这些作用力的施加下不破坏、不倒塌,并且要使建筑物持久地保持良好的使用状态。可见,建筑结构作为荷载或作用的支承者,是其存在的根本原因,也是其最核心的任务。

3. 充分发挥建筑材料的作用

建筑结构的物质基础是建筑材料,结构是由各种材料组成的,如用钢材做成的结构称为钢结构,用钢筋和混凝土做成的结构称为钢筋混凝土结构,用砖(或砌块)和砂浆做成的结构称为砌体结构。

建筑结构设计



相关阅读
BIM应用软件在建筑设计中的表现

BIM应用软件在建筑设计中的表现

BIM应用软件在建筑设计中的表现。建筑表现就是建筑设计的成果表达,历来都是建筑学及相关领域课题研究实践的重要内容之一。在行业中,建筑表现划分两种,一种是静态建筑表现;一种是动态建筑表现。

力荐!一文详解工程结构受力分析和计算

力荐!一文详解工程结构受力分析和计算

结构的受力分析和计算涉及到结构力学。结构力学是固体力学的一个分支,它主要研究工程结构受力和传力的规律,以及如何进行结构优化。 结构力学研究的内容包括结构的组成规则,结构在各种效应(外力,温度效应,施工误差及支座变形等)作用下的响应,包括内力(轴力,剪力,弯矩,扭矩)的计算,位移...

  • 服务热线

    18122393143

  • 总部地址

    广州市越秀区沿江中路298号中区6楼自编609房

  • 邮箱

    junhecs@i3vsoft.com

  • QQ
  • 微博
  • 微信
广州君和信息技术有限公司版权所有